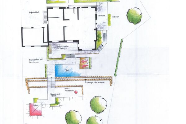
Bilder unserer Planungen
Unser Planungsservice für Sie
Profi-Planung
✔ Ein maßstabgetreuer Entwurfsplan für Ihren Traumgarten
✔ Eine maßstabgetreue Korrektur, wenn sie Änderungswünsche haben
✔ Ihr individuelles Angebot für Ihren Traumgarten inkl. Materialbemusterung bei uns im Schaugarten für Ihr Projekt
599,- €
netto zzgl. MwSt.